OSIEDLE POD LASEM W CHEŁMIE ŚLĄSKIM
11 DOMÓW JEDNORODZINNYCH W ZABUDOWIE WOLNOSTOJĄCEJOFERTA DOSTOSOWANA DLA PROGRAMU CZYSTE POWIETRZE
Dom, nie ważne mały czy duży.
Ważne że własny.
Przedmiotem tej inwestycji
jest budowa 11 budynków mieszkalnych jednorodzinnych w zabudowie wolnostojącej
o powierzchni około 178m2.
W ofercie sprzedaży pozostało już tylko 6 domów
Planowany termin zakończenia inwestycji (ukończenie prac budowlanych w ostatnim domu) – październik 2022 roku.
Cena 680 000 zł
Teren, na którym realizowana jest ta iwestycja – jest płaski
z niewielkim spadkiem w kierunku zachodnim.
Powierzchnia działek dedykowanych dla poszczególnych budynków, to około 650m2 / 1 dom.
Dojazd do działek – bezpośredni, poprzez indywidualne zjazdy z mało uczęszczanej, wewnętrznej drogi publicznej – ul. Wiosennej.
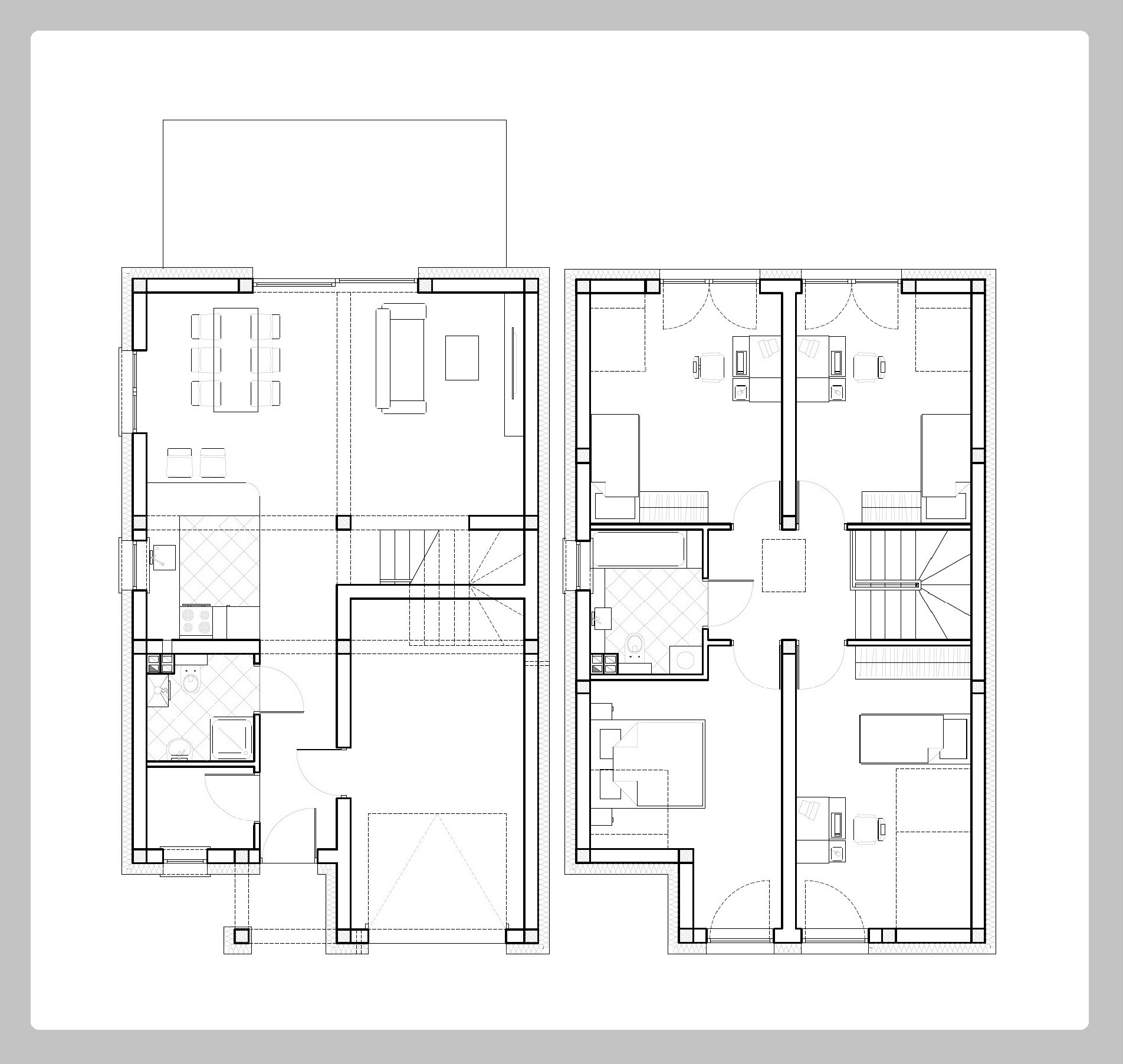
Inwestycja ta obejmuje budowę jedenastu budynków mieszkalnych jednorodzinnych w zabudowie wolnostojącej wraz z infrastrukturą towarzyszącą w postaci placów utwardzonych, miejsc parkingowych, tarasów.
Każdy z budynków zaprojektowany został jako niepodpiwniczony, parterowy z użytkowym poddaszem z dachem dwuspadowym.
Domy wykonane będą w technologii tradycyjnej, murowanej.
Obiekty podzielone zostaną funkcjonalnie na dwie strefy –„ogólnodostępną” na parterze i bardziej prywatną na pierwszej kondygnacji.
Na parterze zaplanowano następujące pomieszczenia: komunikacja, gabinet, łazienka, kuchnia, salon z jadalnią oraz garaż.
Na poddaszu: komunikacja, łazienka i 4 niezależne pokoje.
Projektowane budynki usytuowano najdogodniej w stosunku do nasłonecznienia oraz wykorzystania kształtu i powierzchni działki.
Każdy dom będzie posiadał swój własny ogródek, i taras od strony zachodniej z pięknym widokiem na las.
Domy będą sprzedawane w ramach umowy deweloperskiej (cena domu płatna w transzach, tzn. płatność % zgodnie z zaawansowaniem prac budowlanych – po zakończeniu danego etapu).
Umowa przenosząca własność podpisywana będzie po uzyskaniu prawomocnego zaświadczenia z Inspektoratu Nadzoru Budowlanego o oddaniu budynku do użytkowania.
Po zakończeniu inwestycji każdy dom będzie miał odrębną księgę wieczystą i oczywiście posadowiony będzie na nowo wydzielonej działce.
Z uwagi na nowe/obowiązujące warunki techniczne – w cenie domu uwzględnione zostaną okna nowej generacji – 3 szybowe
(w tym duże okno przesuwne w salonie) oraz instalacja fotowoltaiczna.
W ramach ww. inwestycji planowana jest:
- budowa budynków mieszkalnych jednorodzinnych;
- budowa przyłącza wodociągowego, elektrycznego, gazowego i kanalizacji sanitarnej;
- wykonanie placów utwardzonych.
Budynki zostaną oddane w stanie deweloperskim premium:
- Tynki wewnętrzne i zewnętrzne
- Parapety wewnętrzne
- Parapety zewnętrzne
- Wylewki
- Ocieplenie budynku (styropian 20 cm)
- Ciepłe drzwi wejściowe o wskaźniku 1,1
- Brama garażowa segmentowa otwierana ręcznie
- Dach – dachówka betonowa firmy Brass Cisar
- Schody strychowe
- Obróbki kominowe
- Kominy wentylacyjne
- Rynny i rury spustowe
- Instalacje (elektryczna, gazowa, C.O – podłogowe, wodna, kanalizacyjna – kanalizacja miejska)
- Piec jednofunkcyjny kondensacyjny z zasobnikiem
- Wykonanie poddasza użytkowego w suchej zabudowie wraz z ociepleniem wełną mineralną
- Wewnętrzne tynki gipsowe maszynowe
- Silikonowe tynki zewnętrzne marki premium nakładane maszynowo.
- Ogrodzenie panelowe (od strony drogi dojazdowej – furtka oraz brama przesuwna)
- Taras/wejście do budynku/podjazd do garażu – kostka brukowa betonowa w kolorze szarym lub antracytowym.
- Uporządkowanie działki
Powyższa oferta ma charakter informacyjny i jest zaproszeniem do negocjacji, niniejsza oferta nie stanowi oferty handlowej w rozumieniu art.66 §1 kodeksu cywilnego oraz innych właściwych przepisów prawnych.








